В России широко распространены жалюзи, сделанные из ткани, благодаря тому, что ламели могут иметь самые различные цвета и любой тип фактуры, а также уровень плотности и т.д. Тканями для ламелей могут быть и хлопчатобумажная и любая другая. Изготовить из ткани своими руками жалюзи очень просто.
Вертикальные жалюзи из ткани широко распространены благодаря разнообразию вариантов дизайна и удобству в использовании.
Жалюзи являются многоуровневой системой, основанной на регулировании полосок ламели самым тщательным образом. Это позволит защитить комнату от попадания ярких лучей солнца. Различают горизонтальные и вертикальные виды жалюзи. Это зависит от способа установки полосок-ламелей в конструкцию жалюзи.
Материалы для изготовления жалюзи и порядок выполнения работ
Сделать жалюзи своими руками можно, если под рукой есть ткань или пластик, можно использовать и алюминий.

Стеклоткани изготавливают из стекольного волокна, такие ткани не подвержены влаге, не горят и служат очень долго.
Сшить жалюзи из ткани проще всего, в этом случае лучше изготавливать вертикальную конструкцию. Выбирая ткань для изготовления жалюзи, обязательно следует присматриваться к тому, насколько плотной она является.
Срок службы ламелей будет напрямую зависеть от их плотности. Вместе с тем этот показатель оказывает основное влияние на стоимость материала. Лучше не тратить время на выбор нетканого материала, поскольку он подвержен влиянию влажности и может быстро испортиться.
При желании сделать на кухню жалюзи можно приобрести стеклоткань, которая является пожаробезопасной в наибольшей степени, чем другие виды тканей. При горении стеклоткани не происходит выделение вредных веществ. Можно не применять для обработки водоотталкивающую пропитку, как для других видов тканей. На солнце стеклоткань способна долго сохранять свой цвет.
В любом специализированном магазине можно приобрести бегунок, который является комплектующим для жалюзи. От качества установки бегунков будет зависеть качество работы жалюзи, на которую может оказывать влияние и качество самого бегунка. В качестве материала для изготовления бегунков жалюзи служит пластик.
Перед тем как сделать жалюзи, изготавливают выкройку. По ней необходимо вырезать материал так, чтобы каждая деталь была аккуратной, иначе при шитье могут появиться определенные погрешности, которые не следует допускать. Когда полотна уже выкроены, то для дальнейшего изготовления жалюзи их следует подшить с каждой стороны, подгибая материал не более чем на 2 см.
Далее приступают к изготовлению крепежа, когда уже подшиты полоски. Затем необходимо протянуть шнурки, с помощью которых ламели следует двигать. Бегунок заранее крепят к карнизу, чтобы он мог свободно перемещаться, а с другой стороны на него цепляют ламели. Готовое изделие должно быть надежно закреплено на карнизе, после этого им можно пользоваться.
Как сделать жалюзи своими руками для лоджии

Схема выкройки рулонной шторы.
Наилучшим решением при выборе вариантов жалюзи можно назвать рулонные, которые являются идеальными для лоджий. Изготавливая их своими руками, можно сэкономить, сделав интерьер лоджии модным. Если сделать их самим, то изделие будет не только красивым, но и удобным.
Лицевую и изнанку можно сделать из двух кусочков ткани. Можно взять материал различных фактур и цветов, что позволит создать дизайнерский шедевр. Вам пригодятся:
- ткань;
- нитки;
- ножницы;
- карандаш;
- сантиметр;
- степлер;
- калька;
- саморезы по дереву;
- шуруповерт;
- брусок (2 штуки — с круглой формы поперечника и квадратной).
Поперечник круглого бруска может составлять 1,5 — 2 см, а сечение квадратного — около 2 х 2 либо 2,5 х 2,5 см. Вместо бруска круглой формы можно использовать железный пруток. Не следует выбирать прут с большой массой, иначе жалюзи могут упасть.
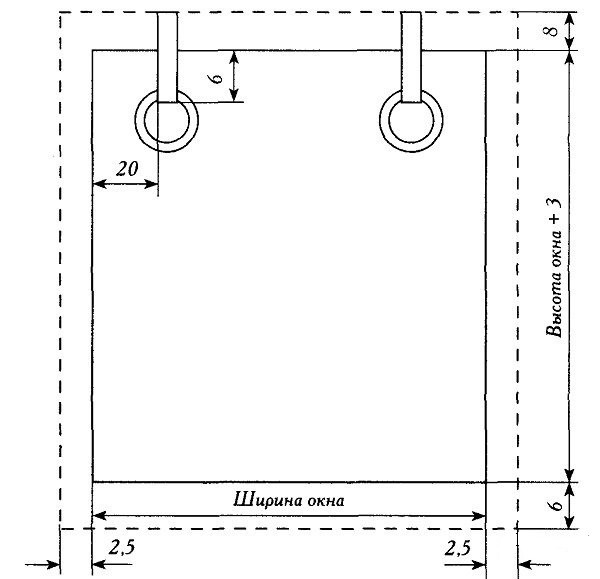
Начинать выполнение работ следует с определения всех размеров изделия. От точности всех измерений будет зависеть его качество. Ширину изделия следует брать соответствующей размеру проема. Прибавка будет около 2 — 3 см на припуски по всем сторонам. Длина жалюзи будет соответствовать высоте проема окна с прибавкой от 10 до 15 см и около 2 — 3 см на швы. Из ткани лучше сгодятся парусина или хлопок.

Конструкция рулонной шторы проста в исполнении и позволяет создать по-настоящему дизайнерские варианты оформления окна.
Из бумаги или кальки вырезают прямоугольник, учитывая все размеры. После этого деталь накладывают на материал с его изнанки, прикрепляя с помощью швейных булавок через каждые 10 — 15 см. Выкройку аккуратно придерживают руками и обводят мелом. После этого снова отмеряют от сделанной линии около 2 — 3 см, чтобы обвести деталь. Все это необходимо повторить сначала с изнаночным материалом.
Когда шторы раскроены, то следует открепить все булавки от выкройки. Две полученные детали складывают лицевыми сторонами друг к другу, а затем их сшивают, делая строчку на швейной машине. Необходимо прострочить три раза с трех сторон, а четвертую оставить для выворачивания детали. Когда она будет вывернута на лицевую сторону, то деталь следует очень хорошо прогладить. Она и будет основой для жалюзи.
На следующем этапе производится закрепление рулонных жалюзи на раму. Для этого основу из ткани раскладывают лицевой стороной на поверхность. Далее выкладывают на один конец основы брусок квадратной формы, ширина которого меньше ширины детали из ткани на 3 — 5 см. Загнув верхний край основы, брусок оборачивают тканью. После этого, воспользовавшись мебельным степлером, закрепляют ткань к бруску.
Как обработать нижний край жалюзи и выполнить отделку
Для равномерного распределения жалюзи по всему окну и красивого их сворачивания следует вшить внизу основной детали, ширина которой соответствует ширине оконного проема, деревянный или металлический круглый брус. Брус должен быть короче самой основы на 2 — 3 см. Нижний край ткани заворачивают на 3 — 3,5 см, сшивая изделие внизу. Предварительно делают ручной легкий шов, а после этого по нему прокладывают машинную строчку. Нитки после ручного шва выдергивают, продевая в отворот.

Прихваты для оформления рулонных жалюзи можно выполнить из контрастных лент или широкой тесьмы.
Для декоративного оформления жалюзи можно воспользоваться красивыми и простыми в исполнении подвязками. Подвязки не сломаются, их легко снять, чтобы постирать. Можно также остановить свой выбор и на сложном роликовом механизме. При этом в дизайн вносят различные кольца для декоративной отделки. Существует множество способов, позволяющих украсить рулонные жалюзи. Можно использовать и подвязки, что является одним из приемлемых вариантов, поскольку их можно снять и постирать, нельзя сломать и просто сделать.
Можно воспользоваться тканью или широкой тесьмой. Они должны подходить по тону к основе, если нужен классический вариант. Для стиля модерн лучше выбрать контрастную отделку. После этого отмечают двойную ширину шторы с прибавкой от 30 до 40 см на выбранных материалах. Изготавливать бумажную выкройку для создания подвязок не обязательно. Следует выкроить полоски, которые будут иметь ширину, составляющую от 6 до 8 см. Их складывают лицевой стороной внутрь, прошивая после этого с каждой стороны, чтобы можно было вывернуть их на лицевую сторону с изнаночной.
Когда изделия уже проглажены, то подвязки закрепляют, отступив от обоих краев бланки из бруса одинаковое расстояние. Это должно позволить обеспечить ровную поддержку рулонных жалюзи. Перекидывают их, применяя степлер для мебели. Брусок, который был прикреплен к верхней стороне шторы, с его нижней стороны с помощью шуруповерта крепят к раме окна.
Когда штора будет надежно укреплена, интерьер станет иметь новый улучшенный вид благодаря новой детали. Можно попросить кого-либо, чтобы вместе свернуть полученные рулонные жалюзи в рулон, чтобы его подвязать на необходимой высоте.